AY(SSJB)型壓蓋式松套伸縮接頭該產品適用于兩邊與管道法蘭連接、勿需焊接,結構合理,密封性能好,安裝快速方便。壓蓋式松套伸縮接頭是在松套伸縮接頭原有性能的基礎上,增設限位裝置,在壓蓋式松套限位伸縮接頭很大伸縮量處用雙螺母鎖定。這樣就實現管道在允許的伸縮量中可以自由伸縮,一旦超過壓蓋式松套限位伸縮接頭很大伸縮量,就起到限位,這樣就有效的確保壓蓋式松套限位伸縮接頭管道的安全運行,特別適用于有震動或有一定斜度及在拐彎的管路中的選擇。
【產品名稱】:AY(SSJB)型壓蓋式松套伸縮接頭(AY壓蓋松套補償接頭)
【產品別名】:壓蓋式松套伸縮器
【產品規格】:【DN65mm-DN4000mm】
【產品壓力】:0.6-2.5MPa
【產品】:
【適用范圍】:【弱酸、弱堿、弱腐蝕類、油、熱水、冷水等】
【產品材質】:碳鋼,球墨鑄鐵,不銹鋼.
【產品顏色】:藍色,可根據客戶要求調色.
【工作溫度】:-40度至80度
在線咨詢
購買熱線: 021-622-00727
SSJB(AY)型壓蓋式松套伸縮接頭優點:安裝方便快捷、無需焊接。能夠通過壓蓋與本體的相互擠壓,造成密封圈的變形從而實現在補償管道軸向位移的同時保證管道線路的高度密封。并且由于它采用的是柔性連接,能夠大大降低管道線路的振動和噪音的影響。SSJB(AY)型壓蓋式松套伸縮接頭適用于輸送海水、淡水、冷熱水、飲用水、生活污水、原油、燃油、潤滑油、成品油、空氣、煤氣、溫度不高于250度的蒸汽和顆粒粉狀等介質。
1能夠實現管道線路軸向位移的補償。并且單從結構上講它的伸縮量會是松套伸縮接頭的兩倍,具有更大的軸向補償量。
2在一定程度上降振減噪,保護管道。
3結構簡單,安裝方便,易于維護和保養。
4上海駱盈選擇高品質的材料是產品很基本的保障。
日前,由遼寧盤錦航空實業有限公司投資10.6億元建設的年產30萬噸重質油加工道路瀝青及10萬噸改性瀝青聯產項目落戶科左中旗。該項目分三期建設,一期建設年產30萬噸重質油加工道路瀝青及10萬噸改性瀝青聯產生產裝置,二期建設年產20萬噸燃料油生產及加氫生產裝置,三期建設年產20萬噸潤滑油加氫生產裝置。項目計劃建設期限3年,全部建成達產后,年可實現銷售收入8.8億元,可安置300人就業。
此次雙方主要是在管道配件領域進行的合作,上海駱盈作為此項目的主要AY(SSJB)型壓蓋式松套伸縮接頭供應商,將盡自己很大的努力供應優質高效的壓蓋式松套伸縮接頭,進行對于管道線路由于熱應力的影響造成位移的補償。如果您有相關方面的疑問和需求來電我們上海駱盈銷售部,聯系電話021-62212627。

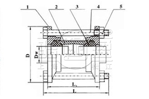
請點擊圖片看大圖
| 序號No. | 名稱Name | 數量Quantity | 材料Material | 
| 1 | 壓蓋Cover | 2 | QT400-15,Q235A,ZG230-450,1Cr13,20 | 
| 2 | 套管Sleeve | 1 | Q235A,20,16Mn,1Cr8Ni9Ti | 
| 3 | 密封圈Gasket | 2 | NBR,CR,FPM,NR | 
| 4 | 螺栓Bolt | n | Q235A,35,1Cr8Ni9Ti | 
| 5 | 螺母Nut | n | Q235A,20,1Cr8Ni9Ti | 
請點擊圖片看大圖
| 公稱通徑 Nnminal Diameter DN | 管子外徑 External diameter of pipe Dw | 外形尺寸Length | N-Th | |||
| 長度Length | D | 0.25-1.6MPa | 2.5-6.4MPa | |||
| L1 | L | |||||
| 65 | 76 | 180 | 208 | 155 | 4-M12 | 4-M12 | 
| 80 | 89 | 165 | ||||
| 100 | 108 | 195 | ||||
| 114 | 195 | |||||
| 125 | 133 | 215 | ||||
| 140 | 225 | 4-M16 | ||||
| 150 | 159 | 220 | 245 | 4-M16 | 6-M16 | |
| 168 | 255 | |||||
| 200 | 219 | 310 | ||||
| 225 | 245 | |||||
| 250 | 273 | 223 | 375 | 6-M20 | 8-M20 | |
| 300 | 325 | 220 | 273 | 440 | ||
| 350 | 355 | 470 | 8-M20 | 10-M20 | ||
| 377 | 490 | |||||
| 400 | 406 | 520 | ||||
| 426 | 540 | 12-M20 | ||||
| 450 | 457 | 570 | 10-M20 | |||
| 480 | 590 | |||||
| 500 | 508 | 625 | ||||
| 530 | 645 | |||||
| 600 | 610 | 730 | ||||
| 630 | 750 | |||||
| 700 | 720 | 850 | 12-M20 | 14-M20 | ||
| 800 | 820 | 290 | 355 | 965 | 12-M24 | 16-M24 | 
| 900 | 920 | 1065 | 14-M24 | 18-M24 | ||
| 1000 | 1020 | 1165 | ||||
| 1200 | 1220 | 1365 | 16-M24 | 20-M24 | ||
| 1400 | 1420 | 377 | 1590 | 18-M24 | 28-M27 | |
| 1500 | 1520 | 1690 | ||||
| 1600 | 1620 | 1795 | 20-M27 | 28-M27 | ||
| 1800 | 1820 | 2000 | 22-M27 | 30-M30 | ||
| 2000 | 2020 | 2200 | 24-M27 | 32-M30 | ||
| 2200 | 2220 | 400 | 2420 | 26-M30 | ||
| 2400 | 2420 | 2635 | 28-M30 | |||
| 2600 | 2620 | 400 | 2835 | 30-M30 | ||
| 2800 | 2820 | 3040 | 32-M33 | |||
| 3000 | 3020 | 3240 | 34-M33 | |||
| 3200 | 3220 | 3440 | 36-M33 | |||
| 3400 | 3420 | 450 | 3640 | 38-M33 | ||
| 3600 | 3620 | 3850 | 40-M36 | |||
| 3800 | 3820 | 4050 | 42-M36 | |||
| 4000 | 4020 | 4250 | 44-M36 | |||
| 注:本尺寸符合12465-2002標準 Note:The size meets standard 12465-2002. | ||||||
壓蓋式伸縮接頭:該產品適用于兩邊與管子插接、無需焊接,結構合理,密封,安裝快速方便。Covering Sleeve: The way of using this product is to joint with the tube on both sides, no welding. It has a reasonable structure, and is sealed. it is very easy to install.
            專業制造、專業服務,駱盈為你創造更多價值 !
       不斷提升服務質量,精益求精,“真誠的服務”是駱盈永恒的主題。駱盈嚴格按照  要求,質量嚴格把關,責任到人,確保生產、銷售、服務的健康運行。加強與用戶溝通,竭誠為廣大客戶提供優質產品,至善至美服務,特此駱盈做出如下承諾:
產品標準
      產品嚴格按照中國 GB、HG 標準和美國 API 等標準設計、制造、驗收。密封面硬度達到規定要求,寬度超過標準。
    
售前服務
      產品介紹,技術交流,非標產品設計,疑難解答。
  
售中服務
       1、守信合同,保證及時供貨,隨時保持與客戶聯系
       2、對特殊或復雜的產品,我廠安排技術人員對用戶進行產品使用、故障排除、調式及維修進行培訓和指導。
  
售后服務
      1、駱盈產品質保期為自出廠起 12 個月,實行“三包”服務(包退、包換、包修)。 
      2、產品在使用中我廠定期組織技術、檢查人員進行訪問,征詢用戶對產品質量、使用狀況、改進意見等方面的反饋,以便進一步提高產品質量。
      3、對用戶投訴產品質量問題,快速做出反映,售后服務人員在 24-36 小時(省外 48 小時)趕赴現場。
      4、對售后服務,要求用戶填寫服務后的質量反饋表,并做出鑒定意見,共同提高駱盈的產品質量與服務質量。
          
1、客戶采購清單請傳真至 021-64207088 E-mail:luoying@luoyingsh.com,或來電咨詢 021-62212627。
      2、收到客戶采購清單,為客戶提供產品型號選型與報價(價格清單)。
      3、具體商定:交貨期、特殊要求等事宜。
訂貨須知
      1、客戶對產品有特殊要求,須在訂貨合同中提供以下說明:
        (1)結構長度
        (2)連接形式
        (3)公稱直徑、全通徑、縮徑、管道尺寸
        (4)用介質及溫度、壓力范圍
        (5)實驗、檢驗標準及其他要求本廠可根據客戶特殊要求配置定做和設計特殊產品。
      2、本廠可根據客戶特殊要求配置定做和設計特殊產品。
      3、如由客戶提供確定的產品類型和型號時,客戶應正確說明其型號的含義和要求,在供需雙方理解一致的條件下簽訂合同。
您也可以聯系在線客服
