B2F(VSSJA-2)雙法蘭限位伸縮接頭是由本體、密封圈、壓蓋、伸縮短管等主要部件組成。在松套伸縮接頭原有性能的基礎上增設限位裝置,在很大伸縮量處用雙螺母鎖定。B2F(VSSJA-2)雙法蘭限位伸縮接頭適用于兩邊均與法蘭連接,安裝時調整產品兩端連接長度,對角依次均勻擰緊壓蓋螺栓,再調整好限位螺母,這樣就能讓管道自由伸縮,鎖定伸縮量,確保管道的安全運行。
【產品名稱】:VSSJA-2雙法蘭限位伸縮接頭(B2F雙法蘭松套限位補償接頭)
【產品別名】:雙法蘭伸縮接頭 雙法蘭限位伸縮器
【產品規格】:【DN65mm-DN3600mm】
【產品壓力】:0.6-1.0MPa
【產品】:
【適用范圍】:【弱酸、弱堿、弱腐蝕類、油、熱水、冷水等】
【產品材質】:碳鋼,球墨鑄鐵,不銹鋼.
【產品顏色】:藍色,可根據客戶要求調色.
【工作溫度】:-40度至80度
在線咨詢
購買熱線: 021-622-00727
B2F(VSSJA-2)雙法蘭限位伸縮接頭是由本體、密封圈、壓蓋、伸縮短管等主要部件組成。在松套伸縮接頭原有性能的基礎上增設限位裝置,在很大伸縮量處用雙螺母鎖定。管道在允許的伸縮量中可以自由伸縮,一旦超過其很大伸縮量就起到限位,確保管道的安全運行,特別適用于有振動或有一定斜度及拐彎的管路中的連接。
該產品伸縮量大、安裝方便快捷。適用于兩端法蘭連接的管道上面。B2F(VSSJA-2)雙法蘭限位伸縮接頭能夠實現管道軸向位移的補償,并且能夠大大減少管道運行時的軸向推力,從而延長管道的使用壽命,保護線路的安全運行。并且安裝在管道線路上能夠方便閥門的拆裝與維護,并且能夠克服地陷對管道線路造成的不良影響。
B2F(VSSJA-2)雙法蘭松套限位伸縮接頭適用于管道線路兩端都是法蘭連接。安裝時調整產品兩端與管道或法蘭的安裝長度,對角均勻擰緊壓蓋螺栓,再調整好限位螺母,這樣就能讓管道在伸縮量范圍內可以自由伸縮,鎖定伸縮量,管道的安全運行。1 伸縮量大,使用壽命長。2 方便閥門的拆裝,有利于管線的定期維護。3 本產品能夠有效地起到保護管線避免受到地陷帶來的不良影響。4 材質優良,運行穩定。B2F(VSSJA-2)雙法蘭限位伸縮接頭適用于輸送海水、淡水、冷熱水、飲用水、生活污水、原油、燃油、潤滑油、成品油、空氣、煤氣、溫度不高于250度的蒸汽和顆粒粉狀等介質。
春節期間,原油在30美元一桶附近大幅震蕩,2月15日,記者從巴州經信委了解到,巴州搶抓原油低價機遇期,全力推進80萬噸乙烷制乙烯上游C3+混烴項目開工建設,鞏固石油石化傳統產業,促其穩定增長。
2016年,巴州將繼續保持和鞏固這一傳統優勢,一如既往地支持油氣資源勘探開發。強化油地合作共建,大力支持中石油、中石化穩產增產,力爭原油產量、原油加工量在2015年的基礎上不減少并有所增長,石油工業實現工業增加值增長2%以上,進一步提高石油天然氣開采業對工業增長的貢獻率。
石油天然氣開采量增加的情況下輸油管道的使用將會更加的頻繁,所以作為管道主要配件的雙法蘭限位伸縮接頭將肩負著更重要的責任,上海駱盈專業生產各類雙法蘭限位伸縮器,此次作為石化項目的主要管道配件的供應商將竭盡全力供應很佳的管道伸縮器,確保管道運行的穩定性。

請點擊圖片看大圖
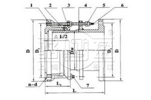
| 序號NO | 名稱Name | 數量Quantity | 材料Material | 
| 1 | 本體Body | 1 | QT400-15,Q235A,ZG230-450,20 | 
| 2 | 密封圈Gasket | 1 | NBR | 
| 3 | 壓蓋Cover | 1 | QT400-15,Q235A,ZG230-450,20 | 
| 4 | 限位螺管Limited short pipe | 1 | Q235A,20,16Mn | 
| 5 | 螺母Nut | 4n | Q235A,20,1Cr18Ni9Ti | 
| 6 | 長螺柱Long Stud | n | Q235A,35,1Cr18Ni9Ti | 
| 7 | 螺柱Bolt | n | Q235A,35,1Cr18Ni9Ti | 
請點擊圖片看大圖

| 公稱通徑 Nomina iameter DN | 管子外徑 External diameter of pipe Dw | 總長 overall length | 伸縮量 Compensation             δ | 法蘭連接尺寸Flange connecting dimension | ||||||
| 0.6Mpa | 1.0Mpa | |||||||||
| L | D | D1 | n-do | D | D1 | n-do | ||||
| 65 | 76 | 300 | 25.0 | 160 | 130 | 4-Φ14 | 185 | 145 | 8-Φ18 | |
| 80 | 89 | 190 | 150 | 4-Φ18 | 200 | 160 | ||||
| 100 | 114 | 210 | 170 | 220 | 180 | |||||
| 125 | 140 | 240 | 200 | 8-Φ18 | 250 | 210 | ||||
| 150 | 168 | 265 | 225 | 8-Φ18 | 285 | 240 | 8-Φ22 | |||
| 200 | 216 | 320 | 280 | 340 | 295 | |||||
| 250 | 273 | 375 | 335 | 12-Φ18 | 395 | 350 | 12-Φ22 | |||
| 300 | 325 | 370 | 32.5 | 440 | 395 | 12-Φ22 | 445 | 400 | ||
| 350 | 377 | 490 | 445 | 505 | 460 | 16-Φ22 | ||||
| 400 | 426 | 540 | 495 | 16-Φ22 | 565 | 515 | 16-Φ26 | |||
| 450 | 480 | 595 | 550 | 615 | 565 | 20-Φ26 | ||||
| 500 | 530 | 645 | 600 | 20-Φ22 | 670 | 620 | ||||
| 600 | 630 | 755 | 705 | 20-Φ26 | 780 | 725 | 20-Φ30 | |||
| 700 | 720 | 860 | 810 | 24-Φ26 | 895 | 840 | 24-Φ30 | |||
| 800 | 820 | 600 | 65.0 | 975 | 920 | 24-Φ30 | 1015 | 950 | 24-Φ33 | |
| 900 | 920 | 1075 | 1020 | 1115 | 1050 | 28-Φ33 | ||||
| 1000 | 1020 | 1175 | 1120 | 28-Φ30 | 1230 | 1160 | 28-Φ36 | |||
| 1200 | 1220 | 1405 | 1340 | 32-Φ33 | 1455 | 1380 | 32-Φ39 | |||
| 1400 | 1420 | 640 | 1630 | 1560 | 36-Φ36 | 1675 | 1590 | 36-Φ42 | ||
| 1600 | 1620 | 1830 | 1760 | 40-Φ36 | 1915 | 1820 | 40-Φ48 | |||
| 1800 | 1820 | 2045 | 1970 | 44-Φ39 | 2115 | 2020 | 44-Φ48 | |||
| 2000 | 2020 | 2265 | 2180 | 48-Φ42 | 2325 | 2230 | 48-Φ48 | |||
| 2200 | 2220 | 2475 | 2390 | 52-Φ42 | 2550 | 2440 | 52-Φ56 | |||
| 2400 | 2420 | 2685 | 2600 | 56-Φ42 | 2760 | 2650 | 56-Φ56 | |||
| 2600 | 2620 | 710 | 70.0 | 2905 | 2810 | 60-Φ48 | 2960 | 2850 | 60-Φ56 | |
| 2800 | 2820 | 3115 | 3020 | 64-Φ48 | 3180 | 3070 | 64-Φ56 | |||
| 3000 | 3020 | 3315 | 3220 | 68-Φ48 | 3405 | 3290 | 68-Φ62 | |||
| 3200 | 3220 | 3525 | 3430 | 72-Φ48 | ||||||
| 3400 | 3420 | 3735 | 3640 | 76-Φ48 | ||||||
| 3600 | 3620 | 3970 | 3860 | 80-Φ56 | ||||||
上海駱盈生產的B2F(VSSJA-2)雙法蘭限位伸縮接頭是由本體、密封圈、壓蓋、伸縮短管等主要部件組成。在松套伸縮接頭原有性能的基礎上增設限位裝置,在很大伸縮量處用雙螺母鎖定。管道在允許的伸縮量中可以自由伸縮,一旦超過其很大伸縮量就起到限位,確保管道的安全運行,特別適用于有振動或有一定斜度及拐彎的管路中的連接。
            專業制造、專業服務,駱盈為你創造更多價值 !
       不斷提升服務質量,精益求精,“真誠的服務”是駱盈永恒的主題。駱盈嚴格按照  要求,質量嚴格把關,責任到人,確保生產、銷售、服務的健康運行。加強與用戶溝通,竭誠為廣大客戶提供優質產品,至善至美服務,特此駱盈做出如下承諾:
產品標準
      產品嚴格按照中國 GB、HG 標準和美國 API 等標準設計、制造、驗收。密封面硬度達到規定要求,寬度超過標準。
    
售前服務
      產品介紹,技術交流,非標產品設計,疑難解答。
  
售中服務
       1、守信合同,保證及時供貨,隨時保持與客戶聯系
       2、對特殊或復雜的產品,我廠安排技術人員對用戶進行產品使用、故障排除、調式及維修進行培訓和指導。
  
售后服務
      1、駱盈產品質保期為自出廠起 12 個月,實行“三包”服務(包退、包換、包修)。 
      2、產品在使用中我廠定期組織技術、檢查人員進行訪問,征詢用戶對產品質量、使用狀況、改進意見等方面的反饋,以便進一步提高產品質量。
      3、對用戶投訴產品質量問題,快速做出反映,售后服務人員在 24-36 小時(省外 48 小時)趕赴現場。
      4、對售后服務,要求用戶填寫服務后的質量反饋表,并做出鑒定意見,共同提高駱盈的產品質量與服務質量。
          
1、客戶采購清單請傳真至 021-64207088 E-mail:luoying@luoyingsh.com,或來電咨詢 021-62212627。
      2、收到客戶采購清單,為客戶提供產品型號選型與報價(價格清單)。
      3、具體商定:交貨期、特殊要求等事宜。
訂貨須知
      1、客戶對產品有特殊要求,須在訂貨合同中提供以下說明:
        (1)結構長度
        (2)連接形式
        (3)公稱直徑、全通徑、縮徑、管道尺寸
        (4)用介質及溫度、壓力范圍
        (5)實驗、檢驗標準及其他要求本廠可根據客戶特殊要求配置定做和設計特殊產品。
      2、本廠可根據客戶特殊要求配置定做和設計特殊產品。
      3、如由客戶提供確定的產品類型和型號時,客戶應正確說明其型號的含義和要求,在供需雙方理解一致的條件下簽訂合同。
您也可以聯系在線客服