CF(VSSJAFG)單法蘭傳力接頭是有松套伸縮接頭和短管法蘭、傳力螺桿等構件組成,它是泵、閥門等設備與管道連接的新產品,通過全螺栓把它們連接起來,使其成為一個整體,并有一定的調節量,這樣就可以在安裝維修時,根據現場安裝尺寸進行調整,在工作時,可以把軸向推力傳還至整個管道。這樣不僅提高工作效率,并且對泵、閥門和管道等起到一定保護作用。
【產品名稱】:CF(VSSJAFG)單法蘭傳力接頭(CF單法蘭松套傳力補償接頭)
【產品別名】:單法蘭傳力接頭
【產品規格】:【DN32mm-DN4000mm】
【產品壓力】:0.6-2.5MPa
【產品】:
【適用范圍】:【弱酸、弱堿、弱腐蝕類、油、熱水、冷水等】
【產品材質】:碳鋼,球墨鑄鐵,不銹鋼.
【產品顏色】:藍色,可根據客戶要求調色.
【工作溫度】:-40度至80度
在線咨詢
購買熱線: 021-622-00727
1、安裝簡單方便、方便閥門安裝、可承受管線的軸向推力。
2、該產品采用金屬鑄造或焊接組成,松套部位選用梯形橡膠密封圈,在壓蓋和螺栓的作用下利用橡膠壓縮彈性變形原理。迫使密封圈變形于接頭本體伸縮管外壁之間進行靜密封。金屬和密封圈嚴格按使用性能及用戶要求選用。材質外部涂裝高強度防腐漆料,各部連接螺栓為高強度碳鋼或不銹鋼制作。
3、在管道中能有效的補償和緩解管道和盲板推力,又能便于水泵,閥門的安裝維修更換,實為管道安裝運行業中很為理想的配套產品。
1安裝簡單方便,有利于泵閥的拆裝與維護。
2使用壽命長,運行穩定。
3能夠將管道的軸向推力反傳至整條管道,避免局部受壓。
  據了解,新開工的8個項目分別為總投資50億元的鄭州區文化廣場項目、總投資6.8億元的鄭州旭鑫西湖購物廣場建設項目、加上鄭州永和制藥有限公司生產基地項目、鄭州區供水有限公司智能水務項目、鄭州熱力有限責任公司智慧熱力項目、110千伏雪蓮輸變電工程項目、110千伏萬科輸變電工程項目共投資88.6億元。此次開工的8個項目,主要涉及物聯網、信息產業、文化產業和智慧城市等多個方面。
近年來,鄭州區圍繞建設千億科技城和打造鄭州商都創新驅動戰略主引擎的目標,突出科技創新和制度創新,全力推進三大主體工作,不斷提升區域科技創新能力,持續優化創新創業環境,力求將區打造為~重要的區域創新中心和創新驅動型經濟發展高地,為鄭州商都建設提供創新支撐和保障。2016年,面對嚴峻的經濟形勢,區將以建設~自主創新示范區為統攬,以制度創新和科技創新為驅動力,克難攻堅,積極作為,著力在制度創新、雙創資源集聚和上市金融服務等三個方面進一步強化發展優勢,努力在主導產業規模、基礎設施保障能力、安置房和重點片區建設速度、城市精細化管理水平和居民生活幸福感等五個方面實現大提升,全面開創北斗云谷千億科技城建設新局面。
上海駱盈作為此次區重點項目的管道傳力接頭供應商,將本著用戶為本的原則,始終如一的向用戶提供專業,優質的管道服務,產品質量值得您的信賴。上海駱盈長期與國內的一大批鋼鐵閥門行業進行合作,產品質量符合~標準。

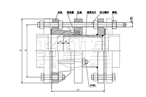
請點擊圖片看大圖
| 序號No. | 名稱Name | 數量Quantity | 材料Material | 
| 1 | 本體Body | 1 | QT400-15,Q235A,ZG230-450,20 | 
| 2 | 密封圈Gasket | 1 | NBR | 
| 3 | 壓蓋Follower | 1 | QT400-15,Q235A,ZG230-450,20 | 
| 4 | 短管法蘭Limited short pipe | 1 | Q234A,20,16Mn | 
| 5 | 螺柱bolt | n | q235A,35,1Cr8Ni9Ti | 
| 6 | 螺母Nut | 5n | Q235A,20,1Cr8Ni9Ti | 
請點擊圖片看大圖
| 公稱通徑 Nominal Diameter DN | 管子外徑 External diameter of pipe | 外形尺寸 Length | 法蘭連接尺寸Flange connecting dimension | |||||||||
| 0.6Mpa | 1.0Mpa | |||||||||||
| Dw | do | L1 | Δ | D | D1 | n-Th | b | D | D1 | n-Th | b | |
| 65 | 76 | 76 | 400 | 20 | 160 | 130 | 4-M12 | 16 | 185 | 145 | 8-M16 | 20 | 
| 80 | 89 | 89 | 190 | 150 | 4-M16 | 18 | 200 | 160 | 22 | |||
| 100 | 114 | 114 | 210 | 170 | 220 | 180 | 24 | |||||
| 125 | 140 | 140 | 240 | 200 | 8-M16 | 20 | 250 | 210 | 26 | |||
| 150 | 168 | 168 | 265 | 225 | 285 | 240 | 8-M20 | |||||
| 200 | 219 | 219 | 320 | 280 | 22 | 340 | 295 | 28 | ||||
| 250 | 273 | 273 | 25 | 375 | 335 | 12-M16 | 24 | 395 | 350 | 12-M20 | ||
| 300 | 325 | 325 | 420 | 440 | 395 | 12-M20 | 24 | 445 | 400 | 12-M20 | 28 | |
| 350 | 377 | 377 | 490 | 445 | 26 | 505 | 460 | 16-M20 | 30 | |||
| 40 | 426 | 426 | 540 | 495 | 12-M20 | 28 | 565 | 515 | 16-M24 | 32 | ||
| 450 | 480 | 480 | 595 | 550 | 28 | 615 | 565 | 20-M24 | 32 | |||
| 500 | 530 | 530 | 645 | 600 | 20-M20 | 30 | 670 | 620 | 34 | |||
| 600 | 630 | 630 | 440 | 755 | 705 | 20-M24 | 30 | 780 | 725 | 20-M27 | 36 | |
| 700 | 720 | 720 | 860 | 810 | 24-M24 | 32 | 895 | 840 | 24-M27 | 40 | ||
| 800 | 820 | 826 | 600 | 30 | 975 | 920 | 24-M27 | 34 | 1015 | 950 | 24-M30 | 44 | 
| 900 | 920 | 926 | 1075 | 1020 | 24-M27 | 36 | 1115 | 1050 | 28-M30 | 46 | ||
| 1000 | 1020 | 1026 | 1175 | 1120 | 28-M27 | 36 | 1230 | 1160 | 28-M33 | 50 | ||
| 1200 | 1220 | 1226 | 620 | 1405 | 1340 | 32-M30 | 40 | 1455 | 1380 | 32-M36 | 56 | |
| 1400 | 1420 | 1428 | 1630 | 1560 | 36-M33 | 44 | 1675 | 1590 | 36-M39 | 62 | ||
| 1600 | 1620 | 1628 | 630 | 1830 | 1760 | 40-M33 | 48 | 1915 | 1820 | 40-M45 | 68 | |
| 1800 | 1820 | 1828 | 2045 | 1970 | 44-M36 | 50 | 2115 | 2020 | 44-M45 | 70 | ||
| 2000 | 2020 | 2030 | 650 | 2265 | 2180 | 48-M39 | 54 | 2325 | 2230 | 48-M45 | 74 | |
| 2200 | 2220 | 2230 | 2475 | 2390 | 52-M39 | 60 | 2550 | 2440 | 52-M52 | 80 | ||
| 2400 | 2420 | 2430 | 2685 | 2600 | 56-M39 | 62 | 2760 | 2650 | 56-M52 | 82 | ||
| 2600 | 2620 | 2630 | 750 | 40 | 2905 | 2810 | 60-M45 | 64 | 2960 | 2850 | 60-M52 | 88 | 
| 2800 | 2820 | 2830 | 3115 | 3020 | 64-M45 | 68 | 3180 | 3070 | 64-M52 | 94 | ||
| 3000 | 3020 | 3030 | 3315 | 3220 | 68-M45 | 70 | 3405 | 3290 | 68-M56 | 100 | ||
| 3200 | 3220 | 3230 | 3525 | 3430 | 72-M45 | 76 | ||||||
| 3400 | 3420 | 3430 | 3735 | 3640 | 76-M45 | |||||||
| 3600 | 3620 | 3630 | 3970 | 3860 | 80-M52 | |||||||
            專業制造、專業服務,駱盈為你創造更多價值 !
       不斷提升服務質量,精益求精,“真誠的服務”是駱盈永恒的主題。駱盈嚴格按照  要求,質量嚴格把關,責任到人,確保生產、銷售、服務的健康運行。加強與用戶溝通,竭誠為廣大客戶提供優質產品,至善至美服務,特此駱盈做出如下承諾:
產品標準
      產品嚴格按照中國 GB、HG 標準和美國 API 等標準設計、制造、驗收。密封面硬度達到規定要求,寬度超過標準。
    
售前服務
      產品介紹,技術交流,非標產品設計,疑難解答。
  
售中服務
       1、守信合同,保證及時供貨,隨時保持與客戶聯系
       2、對特殊或復雜的產品,我廠安排技術人員對用戶進行產品使用、故障排除、調式及維修進行培訓和指導。
  
售后服務
      1、駱盈產品質保期為自出廠起 12 個月,實行“三包”服務(包退、包換、包修)。 
      2、產品在使用中我廠定期組織技術、檢查人員進行訪問,征詢用戶對產品質量、使用狀況、改進意見等方面的反饋,以便進一步提高產品質量。
      3、對用戶投訴產品質量問題,快速做出反映,售后服務人員在 24-36 小時(省外 48 小時)趕赴現場。
      4、對售后服務,要求用戶填寫服務后的質量反饋表,并做出鑒定意見,共同提高駱盈的產品質量與服務質量。
          
1、客戶采購清單請傳真至 021-64207088 E-mail:luoying@luoyingsh.com,或來電咨詢 021-62212627。
      2、收到客戶采購清單,為客戶提供產品型號選型與報價(價格清單)。
      3、具體商定:交貨期、特殊要求等事宜。
訂貨須知
      1、客戶對產品有特殊要求,須在訂貨合同中提供以下說明:
        (1)結構長度
        (2)連接形式
        (3)公稱直徑、全通徑、縮徑、管道尺寸
        (4)用介質及溫度、壓力范圍
        (5)實驗、檢驗標準及其他要求本廠可根據客戶特殊要求配置定做和設計特殊產品。
      2、本廠可根據客戶特殊要求配置定做和設計特殊產品。
      3、如由客戶提供確定的產品類型和型號時,客戶應正確說明其型號的含義和要求,在供需雙方理解一致的條件下簽訂合同。
您也可以聯系在線客服